EMS is now rebranded as Cura Terrae.
Side view of completed V-Notch Weir plate
Case study

Upgrade of measurement structure at Kames MWTS outlet for higher accuracy flow measurements

Our team upgraded a measurement structure at the Kames Mine Water Treatment Scheme (MWTS) outlet and provided measurement of the discharge flows to prove compliance.

The client

The Mining Remediation Authority, formerly the Coal Authority, is an executive non-departmental public body, sponsored by the Department for Energy Security and Net Zero.

The organisation manages the effects of past coal mining. It deals with mine water pollution and other mining legacy issues.

It also owns, on behalf of the country, the majority of the coal in Britain. They provide services to other government departments and agencies, local governments and commercial partners, and contribute to the delivery of the UK Government’s Industrial Strategy and the environmental, social and economic priorities of the UK, Scottish and Welsh Governments.

Overview

We were appointed through the Mining Remediation Authority’s Hydrometry framework to upgrade the existing measurement structure at the outlet of the Kames MWTS, near Smallburn in Cumnock, and provide accurate time-series measurement of the discharge flows to prove compliance with their discharge permit. The scheme at Kames, is a passive gravity fed scheme which provides treatment to the mine water via a cascade and a series of settlement tanks and reed beds.

The requirement included the design, supply, and installation of a new primary device, flow monitoring, and data-logging equipment in line with relevant standards for flow monitoring i.e. BS ISO 1438:2017 or BS ISO 4359:2013+A1:2017 and allowing for the relaxations permitted by the MCERTS standard.

Challenge

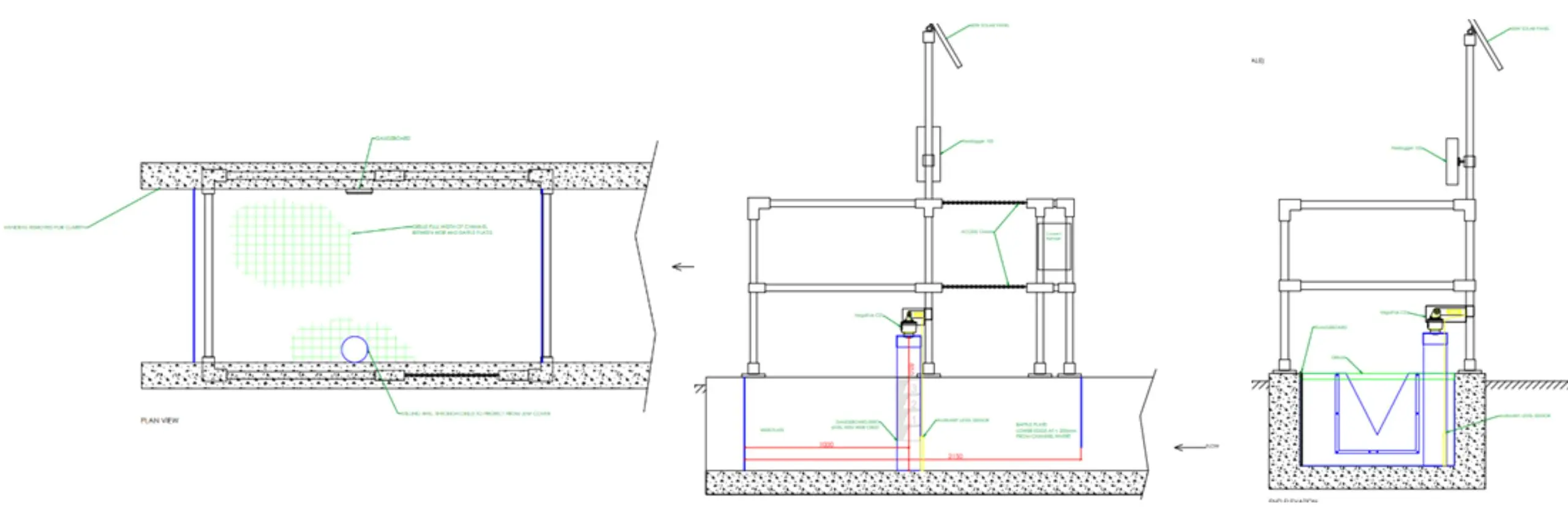
The existing outlet V-Notch weir plate is situated in a 1m wide concrete channel at the downstream end of a cascade, mounted on angle iron fixed to the channel wall, and did not meet required standards due to its thickness, and rough and weathered crest.

From a site visit and survey, it was apparent that the approach channel appeared structurally sound but had moss build up on the walls and some debris in the invert. It was of level and of uniform width, however, the fall from the weir crest is insufficient.

Mobile signal was good on site, but tree cover could impede the use of solar backup.

Image of existing V-Notch Weir plate
Image of existing V-Notch Weir plate

Flow data from site was available, and a 10% allowance was added to allow for the effect of climate change, as follows:

Flow data from site

Solution

Taking into account the design flows, available upstream head, the modular limit, conformance with standards and measurement uncertainty, it was determined that a thin plate weir was the most appropriate option, so was further assessed and designed.

The team proposed a 53.9-degree V-Notch weir plate mounted to a carrier plate which, in turn, would be mounted within the channel at the same location as the original weir plate. The use of a carrier would allow removal in case of either wear on the new plate, or changes in flows requiring a new design. This approach also allowed for the installation without overpumping. Flows were stopped momentarily when required by sandbagging.  Details of the new weir and carrier plate are as follows:

Details of new weir and carrier plate

A 5mm carrier plate would be used, braced to provide stability and to protect against deflection.

Carrier Plate

Included within the requirements are a grid over the location of the weir plate, handrailing, along with the required level measurement device and back-up device, gauge board, logging equipment, and a battery with solar back up. A full set of GA drawings was produced, uncertainty calculations completed and a comparison against required standards completed.

GA drawings

Once approved construction proceeded and was completed as follows:

Construction of weir and carrier plates
The completed V-Notch weir plate
The completed V-Notch weir plate
Side view of completed V-Notch Weir plate
Side view of completed V-Notch Weir plate

Client benefits

  • Accurate Flow Measurement: Enhanced time-series data aligned with BS ISO and MCERTS standards ensured compliance with discharge permits.
  • Optimised System Design: New weir plate designed to suite present flows, but with flexibility to be changed if required.
  • Operational Flexibility: Future proofing for either erosion of the plate or operational and flow changes.
  • Comprehensive Documentation: Detailed reports and uncertainty analyses provided transparency and confidence in system performance.
  • Sustainable Operations: Grid and handrailing reduce the build-up of debris from trees adjacent to the weir plate and assist in safe maintenance.
  • Additional level measurement incorporated as a back-up, and gauge board installed for visual confirmation of depths

Client Testimonial

Cura Terrae were appointed to our Hydrometry framework and have successfully delivered several flow measurement installations. The sites at Minto, Kames and Chell Heath presented unique challenges due to existing infrastructure, but their team worked closely with us to develop practical, innovative solutions that met our requirements and were delivered to a high standard.

Rob Burton BSc (Hons) MCIWEM CWEM Senior Hydrologist

Lastest insights

ISCO TIENet 301 pH and Temperature Module

pH monitoring – a permanent headache? Solutions to common problems

David Claridge
David Claridge Industrial Water Business Development Manager
Grass with sunset

What happens at ISO 14001 Surveillance Audits?

Rebecca Chapman
Rebecca Chapman Strategic Accounts Director
Analysing and reviewing

Net zero: key terms for businesses

Elspeth Rider
Elspeth Rider Copywriter
Aerial view of wind turbine farm

UK submits newest Paris Agreement commitment – what does it mean for businesses?

Elspeth Rider
Elspeth Rider Copywriter
Aerial view of a river winding through the fields in the countryside

Contact our experts

Contact our team for expert assistance with all your water and environmental needs. We’re here to answer any questions and provide solutions tailored to your regulatory and operational requirements.